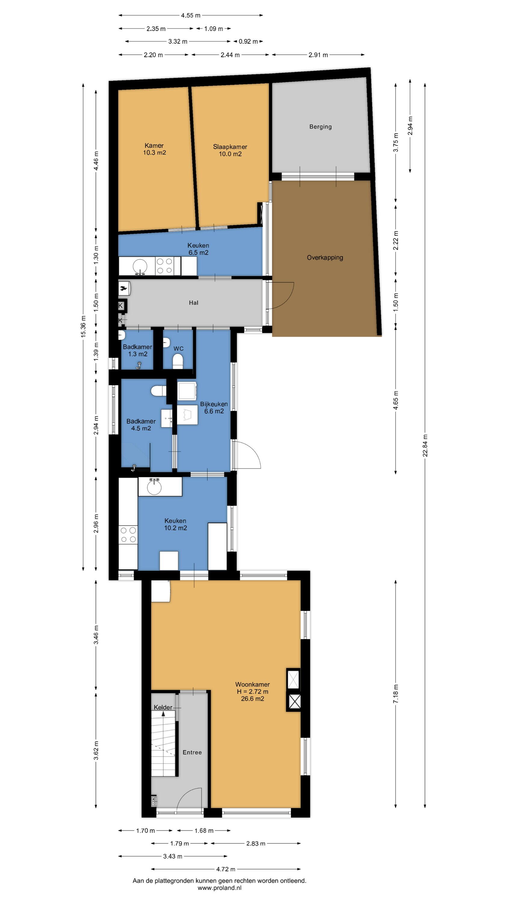
- Woonoppervlakte
- Circa 145 m²
- Perceeloppervlakte
- Circa 206 m²
- Bouwjaar
- Gebouwd in 1927
- Aantal kamers
- 6 kamers (5 slaapkamers)
Ben jij handig, zie je kansen waar anderen werk zien én zoek je een fijne plek voor je gezin? Dan is Schietbaanweg 16 & 16A in Twekkelerveld een woning die je aandacht verdient. Deze vrijstaande woning biedt ruimte, flexibiliteit en een unieke financiële kans: je koopt deze woning maar liefst € 76.000 onder de WOZ?waarde van € 416.000.
Een ideale basis voor gezinnen met visie, handige kopers en ondernemers die wonen, werken en waardeopbouw willen combineren.
Een huis waar je als gezin kunt groeien
De begane grond beschikt over een ruime woonkamer met aangrenzende keuken. Dit is dé plek waar het dagelijks leven samenkomt: koken, huiswerk maken, samen eten en ontspannen. Met een slimme verbouwing creëer je hier een modern en warm leefhart waar het hele gezin zich thuis voelt.
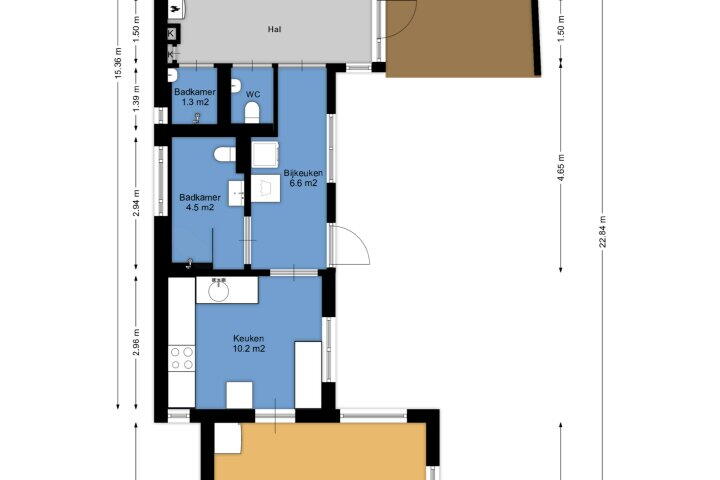
Extra praktisch: een slaapkamer en badkamer bevinden zich op de begane grond. Ideaal voor logees, opgroeiende kinderen, werken aan huis of gelijkvloers wonen in de toekomst.
Dankzij het royale woonoppervlak is er bovendien ruimte voor een praktijk, salon of kantoor aan huis. Het tweede huisnummer (16A) maakt deze woning uniek en bijzonder geschikt voor gezinnen die wonen en werken willen combineren.
Ruimte voor iedereen
Op de eerste verdieping en zolder bevinden zich drie ruime slaapkamers. Met aandacht en liefde maak je hier comfortabele slaapkamers die meegroeien met je gezin.
Buitenleven en gemak
De tuin vraagt om een opknapbeurt, maar biedt juist daardoor volop mogelijkheden: een veilige speelplek voor kinderen, een zonnig terras of een groene tuin waar je samen geniet van het buitenleven.
De eigen oprit zorgt voor dagelijks gemak: altijd parkeren voor de deur én uitermate geschikt voor het laden van een elektrische auto op eigen terrein. Toekomstgericht en waarde verhogend.
Om de potentie alvast zichtbaar te maken, zijn er impressie tekeningen van de woonkamer, keuken en tuin toegevoegd.
Fijne en centrale ligging
De woning ligt in de geliefde wijk Twekkelerveld, een prettige woonomgeving voor gezinnen:
- Basisschool en middelbare school op korte afstand
- Gelegen tussen de universiteit en de binnenstad van Enschede
- Sportvelden van Richtersbleek op loopafstand
- Winkelcentrum Twekkelerveld nabij
- Eén van de mooiste parken op loopafstand "Abraham Ledeboerpark"
Kortom een locatie waar kinderen veilig opgroeien en waar je zelf alles dichtbij hebt.
Waarom deze woning zo interessant is:
- Vrijstaande kluswoning met uitzonderlijk veel potentie
- € 76.000 onder WOZ?waarde (€ 416.000)
- Ideaal voor gezinnen én handige kopers
- Eigen oprit, perfect voor laden op eigen terrein
- Slapen en baden op de begane grond mogelijk
- Tweede huisnummer (16A): wonen & werken te combineren
- Drie slaapkamers verdeeld over verdieping en zolder
- Ruime tuin met mogelijkheden voor eigen invulling
- Gelegen in kindvriendelijk Twekkelerveld
Dit is geen standaard woning, maar een kansrijk familiehuis. Voor wie de handen uit de mouwen wil steken, ligt hier de mogelijkheid om vrijstaand te wonen, een fijne gezinsplek te creëren én tegelijkertijd direct overwaarde op te bouwen.
Zie jij jouw gezin hier al wonen? Plan dan een bezichtiging en ontdek de ruimte, rust en potentie zelf.
www.schietbaanweg16.nl
Overdracht
- Vraagprijs
- € 350.000 k.k.
- Status
- Beschikbaar
- Aanvaarding
- In overleg
Bouw
- Object type
- Eengezinswoning, vrijstaande woning
- Soort bouw
- Bestaande bouw
- Bouwjaar
- 1927
- Soort dak
- Tentdak bedekt met pannen
Oppervlakte en inhoud
- Woonoppervlakte
- 145 m²
- Perceeloppervlakte
- 206 m²
- Inhoud
- 470 m³
- Overige inpandige ruimte
- 10 m²
- Externe bergruimte
- 8 m²
Indeling
- Aantal kamers
- 6 kamers (5 slaapkamers)
- Aantal badkamers
- 1 badkamer
- Badkamervoorzieningen
- Toilet, wastafel, wastafelmeubel, inloopdouche
- Aantal woonlagen
- 4 woonlagen
- Voorzieningen
- Glasvezel kabel, natuurlijke ventilatie
Energie
- Energielabel
- G
- Energielabel registratie
- 16-07-2025
- Isolatie
- Dakisolatie, dubbel glas
- Verwarming
- Cv-ketel
- Warm water
- Cv-ketel
- Cv ketel
- Remeha combiketel gas gestookt uit 2024 (eigendom)
Buitenruimte
- Ligging
- Aan rustige weg, in woonwijk
- Tuin
- Achtertuin, voortuin
- Afmetingen achtertuin
- 72 m² (17 meter diep en 4.25 meter breed)
- ligging tuin
- Gelegen op het noordoosten en bereikbaar via achterom
Bergruimte
- Schuur / berging
- Aangebouwd steen
- Voorzieningen
- Voorzien van elektra
Garage
- Soort garage
- Geen garage
Parkeergelegenheid
- Soort parkeergelegenheid
- Openbaar parkeren, op eigen terrein
Energieverbruik in Enschede
Energielabel deze woning
Energielabel G
Publicatie energielabel: 16-07-2025
Stroomverbruik per jaar
(Gemiddelde vrijstaande woning in Enschede)
Gasverbruik per jaar
(Gemiddelde vrijstaande woning in Enschede)
* Cijfers zijn afkomstig van het CBS en bedoeld als indicatie en kunnen verschillen voor deze woning
Indicatie hypotheeklasten
Eigen inleg:
Spaargeld / overwaarde
Rente:
Laagste 10-jaars rente
Laagste 10-jaars rente
2,78% - Centraal Beheer Groen... - NHG
3,04% - Centraal Beheer Groen... - 80%
Laagste 20-jaars rente
3,29% - Centraal Beheer Groen... - NHG
3,52% - Centraal Beheer Groen... - 80%
Laagste 30-jaars rente
3,41% - Centraal Beheer Groen... - NHG
3,7% - Argenta Groen Hypotheek... - 80%
Hypotheek:
Bruto maandlasten: € 0 p/m
Netto maandlasten: € 0 p/m
Hoe berekenen we dit?
Het rentepercentage is gebaseerd op de laagste 10 jaars vaste rente voor één hypotheekdeel. De vermelde rente (2.78% met NHG) is gecontroleerd op 27-02-2026. Deze berekening is gebaseerd op een annuïteitenhypotheek die volledig wordt afgelost, waarbij de maandlasten gedurende de gehele looptijd gelijk blijven. De werkelijke rente en netto maandlasten kunnen variëren, afhankelijk van uw persoonlijke situatie en de hypotheekverstrekker. Raadpleeg een financieel adviseur voor een nauwkeurige berekening en advies. Aan deze berekening kunnen geen rechten worden ontleend; het dient enkel als indicatie.
Documentatie
Kadastrale kaart
Leefomgeving
Brochure
Vragenlijst
Lijst van zaken
Energielabel
BAG uittreksel
Plattegronden PDF
WOZ waarderapport
Bezoek onze website
Bezichtiging
Bod uitbrengen
Waardebepaling
Zoekopdracht
Alles downloaden
Zonnegrenzen bekijken
Op de kaart
Inwoners in Enschede
Cijfers voor postcodegebied 7521
- Totaal aantal inwoners
- 158255 inwoners
- Mannen
- 51%
- Vrouwen
- 49%
Inwoners in Enschede
Cijfers voor postcodegebied 7521
- tot 15 jaar
- 14%
- 15 tot 25 jaar
- 16%
- 25 tot 35 jaar
- 25%
- 45 tot 65 jaar
- 27%
- 65 en ouder
- 18%
Huishoudens in Enschede
Cijfers voor postcodegebied 7521
- Eenpersoons zonder kinderen
- 51%
- Meerpersoons zonder kinderen
- 23%
- Huishoudens zonder kinderen
- 74%
Huishoudens in Enschede
Cijfers voor postcodegebied 7521
- Huishoudens met één kind
- 8%
- Huishoudens met meerdere kinderen
- 17%
- Huishoudens met kinderen
- 25%
Woningen in Enschede
Cijfers voor postcodegebied 7521
- Woningen voor 1945
- 34%
- Woningen tussen 1945 en 1965
- 33%
- Woningen tussen 1965 en 1975
- 19%
- Woningen tussen 1975 en 1985
- 4%
- Woningen tussen 1985 en 1995
- 2%
Woningen in Enschede
Cijfers voor postcodegebied 7521
- Woningen tussen 1995 en 2005
- 4%
- Woningen tussen 2005 en 2015
- 4%
- Woningen na 2015
- 1%
- Huurwoningen
- 60%
- Koopwoningen
- 40%
Overige in Enschede
Cijfers voor postcodegebied 7521
- Gemiddelde WOZ waarde
- € 159.000,-
- Personen onder de 65 met uitkering
- 14%
Overige in Enschede
Cijfers voor postcodegebied 7521
- Adressen per km²
- 1593
- Stedelijkheid (schaal 1 op 5)
- 80%
Korte feiten over Enschede
Enschede is een stad en gemeente in Twente, in het oosten van de Nederlandse provincie Overijssel.
Kemps Makelaarshuis de makelaar van nu!
De moderne, no-nonsense makelaar van Twente. Waar persoonlijke aandacht centraal staat in onze dagelijkse dienstverlening. Het aan- en/of verkopen van een woning is een spannende gebeurtenis. Dan is het fijn wanneer er een vriend “Homi makelaar” naast je staat die zich hard maakt voor jouw persoonlijk belangen! Dagelijks zijn wij succesvol actief op de Twentse woningmarkt. Je kunt ons o.a. vinden in de plaatsen Enschede, Hengelo & Haaksbergen.
Ieder persoon en elke woning is uniek, daarom hanteren wij altijd een op maat gemaakt plan dat perfect aansluit op jouw woonwensen. Door middel van innovatie en geavanceerde technologie streven wij naar een stressvrije en plezierige ervaring voor onze klanten. Door middel van onze op data gebaseerde strategie bereiken we een uitgebreider publiek dan anderen, en dit gebeurt altijd met een persoonlijke en doelgerichte aanpak, zowel online als offline. Als je vragen hebt over de vastgoedmarkt of wil je meer weten over jouw woning, staan wij altijd klaar om je te helpen.
Nieuwste reviews
-
Robert
Marco Kemps van Homi makelaars Is een nette professionele en een gedreven makelaar die alles goed Geregeld heeft , wat hij zegt maakt hij wa...
-
Judy Diao
Marco Kemps is een geweldige makelaar! Ik heb Marco aangenomen als onze aankoop en verkoopmakelaar. Onze samenwerking duurde in totaal 7 maa...
-
Vittorina Verbeek
Wij hebben onlangs het huis van onze ouders verkocht en dat was niet altijd een eenvoudig proces. Wat voor ons het verschil heeft gemaakt, i...